PE Homes
  • Home
  • Our Offices

Type

Property Type

Bedrooms

Bathrooms

Min. Price

Max. Price

IMG_6887.jpeg
IMG_6876.jpeg
IMG_6871.jpeg
IMG_6944.jpeg
IMG_6730.jpeg
IMG_6732.jpeg
IMG_6819.jpeg

Asking Price £225,000

2 beds 1 bath

Available

Nuffield Way, Basingstoke, Hampshire

Features

No chain!
Ground floor
Allocated parking space, plus visitors parking available
Bike storage/garage available
Pets welcome!

Summary

No chain! Beautifully Presented Two Bedroom Ground Floor Flat – Basingstoke

Description

Offered for sale, with no chain, is this beautifully presented two-bedroom, ground floor flat, located in the popular Sherbourne Fields development. The property has had new flooring and carpets and has been freshly painted in the last year.

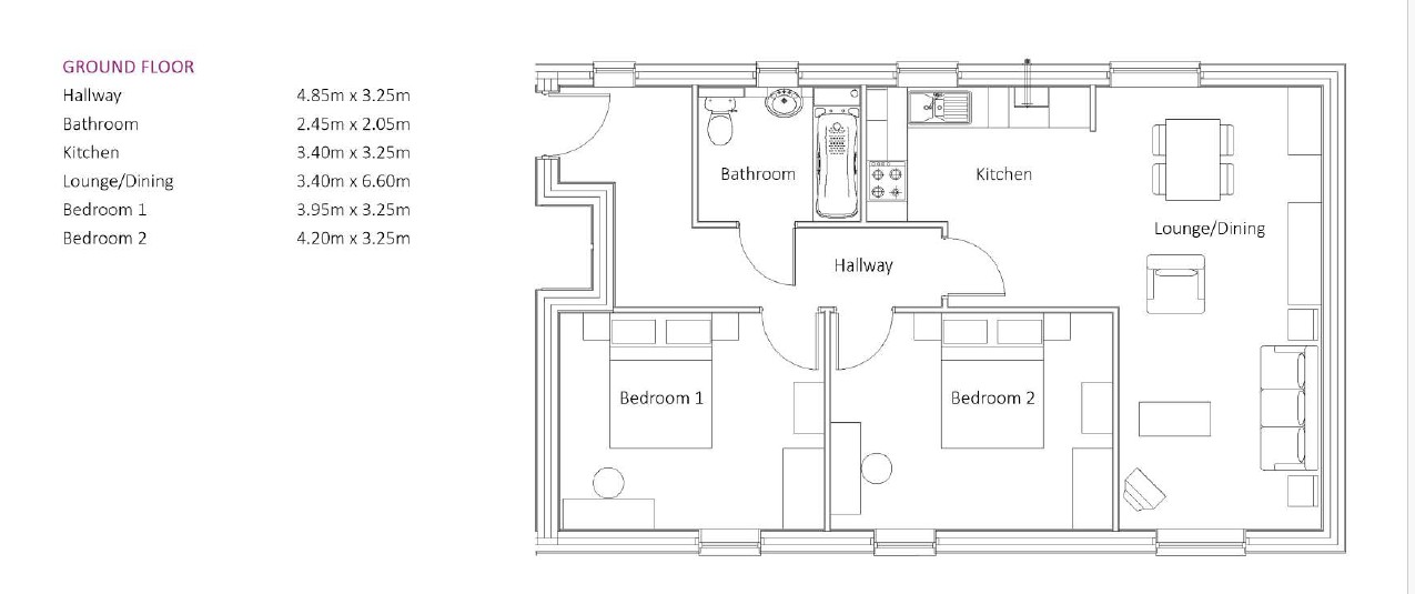
The property features a spacious entrance hallway leading into a generous lounge/diner, which is open plan to the modern kitchen. Dual-aspect windows flood the living space with natural light, creating a bright and inviting atmosphere. The kitchen comes complete with an integrated oven, gas hob, extractor fan, and space for both a washing machine and fridge/freezer.

There are two well-decorated double bedrooms, both offering comfortable space and versatility. The property also benefits from an immaculate family bathroom, fitted with a contemporary three-piece suite.

Externally, the flat includes an allocated parking space, additional visitor parking, and convenient bike/garage storage.

Ideally positioned for access to local amenities, shops, restaurants in nearby Basingstoke, this home is perfect for first-time buyers or those seeking an affordable, well-maintained property in a desirable location.

Early viewings are highly recommended.

The monthly service charge payable is £117.76

Utilities, Rights, Easements & Risks

Utility Supplies
Electricity Mains Supply
Water Mains Supply
Heating Gas Mains
Broadband FTTP (Fibre to the Premises)
Sewerage Mains Supply
Rights & Restrictions
Article 4 Area Ask Agent
Listed property Ask Agent
Restrictions Ask Agent
Required access Ask Agent
Rights of Way Ask Agent
Risks
Flooded in last 5 years Ask Agent
Flood defenses Ask Agent
Flood sources Ask Agent

Additional Details

Parking - Allocated
Bedrooms: 2 Bedrooms
Bathrooms: 1 Bathroom
Tenure: Leasehold
Lease Remaining: 120 years
Service Charge: £1,413.12 / year

EPC Charts

EPC EE chart
EPC EI chart

Floorplans

FP

Logo

PE Homes - West Molesey

PE Homes, Aztec House, 137A Molesey Avenue, West Molesey, Surrey, kt82ry

Phone: 02039242024

Broadband Speeds

Minimum Maximum
Download 6.00 Mbps 1800.00 Mbps
Upload 0.70 Mbps 220.00 Mbps
Estimated broadband speeds provided by Ofcom for this property's postcode.

Mobile Coverage

Indoor
Provider Voice Data 4G
EE
Three
O2
Vodafone
Estimated mobile coverage provided by Ofcom for this property's postcode.
Outdoor
Provider Voice Data 4G
EE
Three
O2
Vodafone
Estimated mobile coverage provided by Ofcom for this property's postcode.

© 2025 PE Homes
All rights reserved.

Powered by Apex27
Pages
  • Home
  • Our Offices